La soluzione giusta al problema "Casa"!
Toggle navigation
Home
Immobili
Vendite
Affitti
Immobili commerciali
Terreni
Chi siamo
Servizi
Contatti
Compatta pannello di ricerca immobili
Espandi pannello di ricerca immobili
Tipologia
Vendite
Affitti
Immobili commerciali
Terreni
Categoria
Qualsiasi
1 locale
2 locali
3 locali
4 o più locali
Appartamento
Attico
Azienda agricola
Baita
Cantina
Capannone
Casa singola
Castello
Duplex
Garage
Hotel
Laboratorio
Loft
Magazzino
Maisonette
Mansarda
Negozio
Porzione di casa
Porzione di villa
Posto auto
Posto barca
Rustico / Casale
Stabile / Palazzo
Tenuta
Terreno
Terreno agricolo
Terreno edificabile
Ufficio
Villa
Villa bifamiliare
Villetta a schiera
Città
Tutte
Buseto Palizzolo (TP)
Custonaci (TP)
Erice (TP)
Favignana (TP)
Marsala (TP)
Paceco (TP)
Pantelleria (TP)
Trapani (TP)
Valderice (TP)
Zona
Tutte
Prezzo (da - a)
Mq (da - a)
Codice
Ordinamento
Inserimento
Codice
Categoria
Città
Zona
Prezzo
Metri quadri
Cerca
VALDERICE - Casa a solo p.t. e 1°p., mq 180 ca, ampio 4 vani oltre accessori con giardino e terrazzo
200.000 €
180 m
2
3 Camere
2 Bagni
Previous
Next
Foto
Codice
406-c
Città
Valderice
Categoria
Casa singola
Locali
4
Piano
Terra
Classe energetica
G
Stato Immobile
Ristrutturato
Panorama
Vista Mare
Lati Liberi
2
Giardino
Privato
Arredi
Non Arredato
Tipo Cucina
Abitabile
Riscaldamento
Autonomo
Tipo Riscaldam.
Caldaia
Tipo Impianto
Radiatori
Fonte Energetica
Metano
Raffrescamento
Split
Infissi
Alluminio Doppio Vetro
Accessori
Aria Condizionata, Doppi Vetri, Lavanderia, Ripostiglio
A Valderice, sulla centrale Via Vespri, lo Studio immobiliare Punto Casa di Giacomo Nicotra propone in vendita una casa indipendente su due elevazioni, piano terra e primo piano.
L’immobile, che si presenta ristrutturato, si estende su una superficie totale di 180 mq circa suddivisi come un ampio 4 vani e così distribuito:
PIANO TERRA
- ampio ingresso;
- soggiorno con accesso a un bel cortiletto interno;
- cucina con annessa sala da pranzo con dispensa e ripostiglio;
- camera da letto matrimoniale;
- n. 2 camerette;
- bagno con vasca;
- lavanderia accessibile dal cortiletto interno;
- giardinetto.
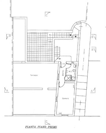
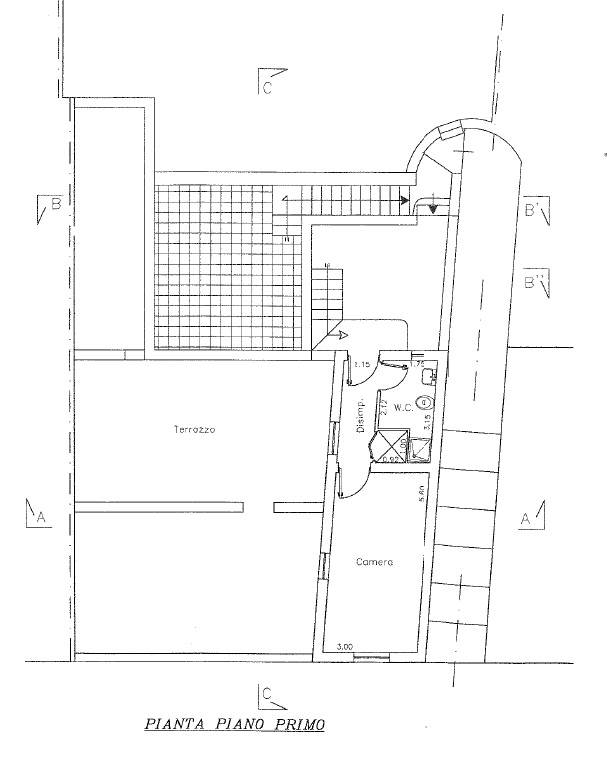
PRIMO PIANO
- camera da letto;
- w.c.;
- ampio terrazzo con vista mare.
L’immobile risulta ben climatizzato grazie alla presenza dell’impianto di riscaldamento a metano con caldaia e piastre e all’impianto di climatizzazione con pompe caldo/freddo.
Gli infissi esterni sono in legno vetrocamera.
Il prezzo di vendita richiesto ammonta a Euro 200 mila.
Condividi
Tweet
Mantieni impostazioni di default X
Uso dei cookies
Questo sito fa uso di cookies. I nostri cookies (propri) e quelli dei nostri Partners (cookies di terzi) servono per poterti offrire un'esperienza unica con noi. Per questo motivo, insieme ai nostri partners, raccogliamo e processiamo informazioni non sensibili (come l'identificatore del tuo dispositivo o le pagine che visiti).
In qualsiasi momento potrai eliminare, modificare o verificare le informazioni che condividi in
Cookie preference
o nella nostra
Cookie Policy
e
Privacy Policy
.
Necessari
Funzionali
Profilazione
Analitici
Accetta tutti
Rifiuta tutti
Accetta selezionati
Cookie preference