La soluzione giusta al problema "Casa"!
Toggle navigation
Home
Immobili
Vendite
Affitti
Immobili commerciali
Terreni
Chi siamo
Servizi
Contatti
Compatta pannello di ricerca immobili
Espandi pannello di ricerca immobili
Tipologia
Vendite
Affitti
Immobili commerciali
Terreni
Categoria
Qualsiasi
1 locale
2 locali
3 locali
4 o più locali
Appartamento
Attico
Azienda agricola
Baita
Cantina
Capannone
Casa singola
Castello
Duplex
Garage
Hotel
Laboratorio
Loft
Magazzino
Maisonette
Mansarda
Negozio
Porzione di casa
Porzione di villa
Posto auto
Posto barca
Rustico / Casale
Stabile / Palazzo
Tenuta
Terreno
Terreno agricolo
Terreno edificabile
Ufficio
Villa
Villa bifamiliare
Villetta a schiera
Città
Tutte
Buseto Palizzolo (TP)
Custonaci (TP)
Erice (TP)
Favignana (TP)
Paceco (TP)
Pantelleria (TP)
San Vito Lo Capo (TP)
Trapani (TP)
Valderice (TP)
Zona
Tutte
Prezzo (da - a)
Mq (da - a)
Codice
Ordinamento
Inserimento
Codice
Categoria
Città
Zona
Prezzo
Metri quadri
Cerca
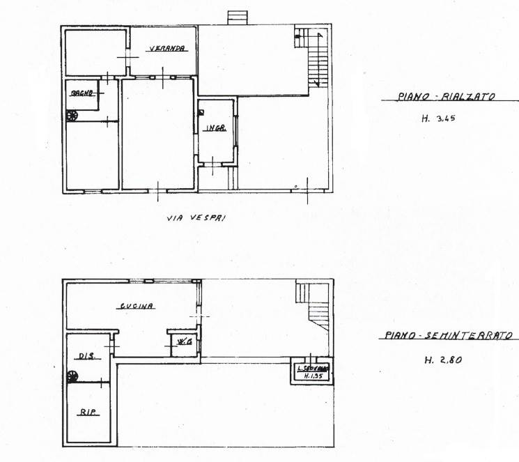
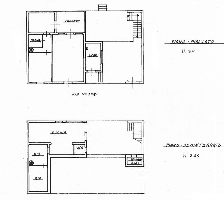
VALDERICE – Via Vespri – Casa a solo con giardino
149.000 €
170 m
2
2 Camere
2 Bagni
Previous
Next
Foto
Codice
380-c
Città
Valderice
Categoria
Casa singola
Locali
4
Mq Giardino
650
Piano
Rialzato
Classe energetica
G
Stato Immobile
Discrete Condizioni
Lati Liberi
2
Giardino
Privato
Arredi
Non Arredato
Tipo Cucina
Abitabile
Riscaldamento
Autonomo
Tipo Impianto
Aria
Fonte Energetica
Legna
Infissi
Legno
Accessori
Camino, Ripostiglio, Veranda
A Valderice, sulla principale Via Vespri, lo Studio Immobiliare Punto Casa di Giacomo Nicotra propone in vendita una soluzione indipendente su due elevazioni e con vista mare, che si estende su una superficie totale di circa 170 mq insistendo su un lotto di terreno di circa 750 mq.
La soluzione, che si presenta in buone condizioni necessitando di qualche lavoro di ammodernamento, è suddivisa in 4 vani + accessori così distribuiti:
PIANO TERRA
- ingresso;
- ampio e luminoso soggiorno con camino e portafinestra conducente a veranda vista mare;
- camera da letto matrimoniale;
- seconda camera da letto matrimoniale con accesso a veranda vista mare;
- bagno con vasca;
- disimpegno con scala a chiocciola conducente al piano inferiore.
PIANO SEMINTERRATO
- ampia cucina abitabile con piano cottura in muratura e predisposizione per stufa a legna, con accesso a giardino e lunghe vetrate;
- comodo ripostiglio;
- w.c. di servizio;
- ampi spazi esterni con zona lavanderia/riposto, zona barbecue e giardino.
L'immobile si presta ad essere utilizzato sia come abitazione principale che come seconda casa per le vacanze. Ottima posizione strategica anche per un uso investimento.
Il prezzo di vendita richiesto ammonta a Euro 149 mila.
Condividi
Tweet
Mantieni impostazioni di default X
Uso dei cookies
Questo sito fa uso di cookies. I nostri cookies (propri) e quelli dei nostri Partners (cookies di terzi) servono per poterti offrire un'esperienza unica con noi. Per questo motivo, insieme ai nostri partners, raccogliamo e processiamo informazioni non sensibili (come l'identificatore del tuo dispositivo o le pagine che visiti).
In qualsiasi momento potrai eliminare, modificare o verificare le informazioni che condividi in
Cookie preference
o nella nostra
Cookie Policy
e
Privacy Policy
.
Necessari
Funzionali
Profilazione
Analitici
Accetta tutti
Rifiuta tutti
Accetta selezionati
Cookie preference